| Kohde | Astreankatu 1, Hyvinkää |
| Kategoria | Asuminen |
| Työryhmä | Emma Kämäräinen, Juha Kämäräinen, Kaisa Kiuttu |
| Laajuus | 58 asuntoa, 4232 br-m2 |
| Valmistumisvuosi | 2020 | Asiakas | A-Kruunu Oy |
Hyvinkään uudelle Hangonsillan alueelle rakennettava A-Kruunu Oy:n 5-7 kerroksinen kerrostalo sisältää 58 kpl ARA-rahoitteisia vuokra-asuntoja.

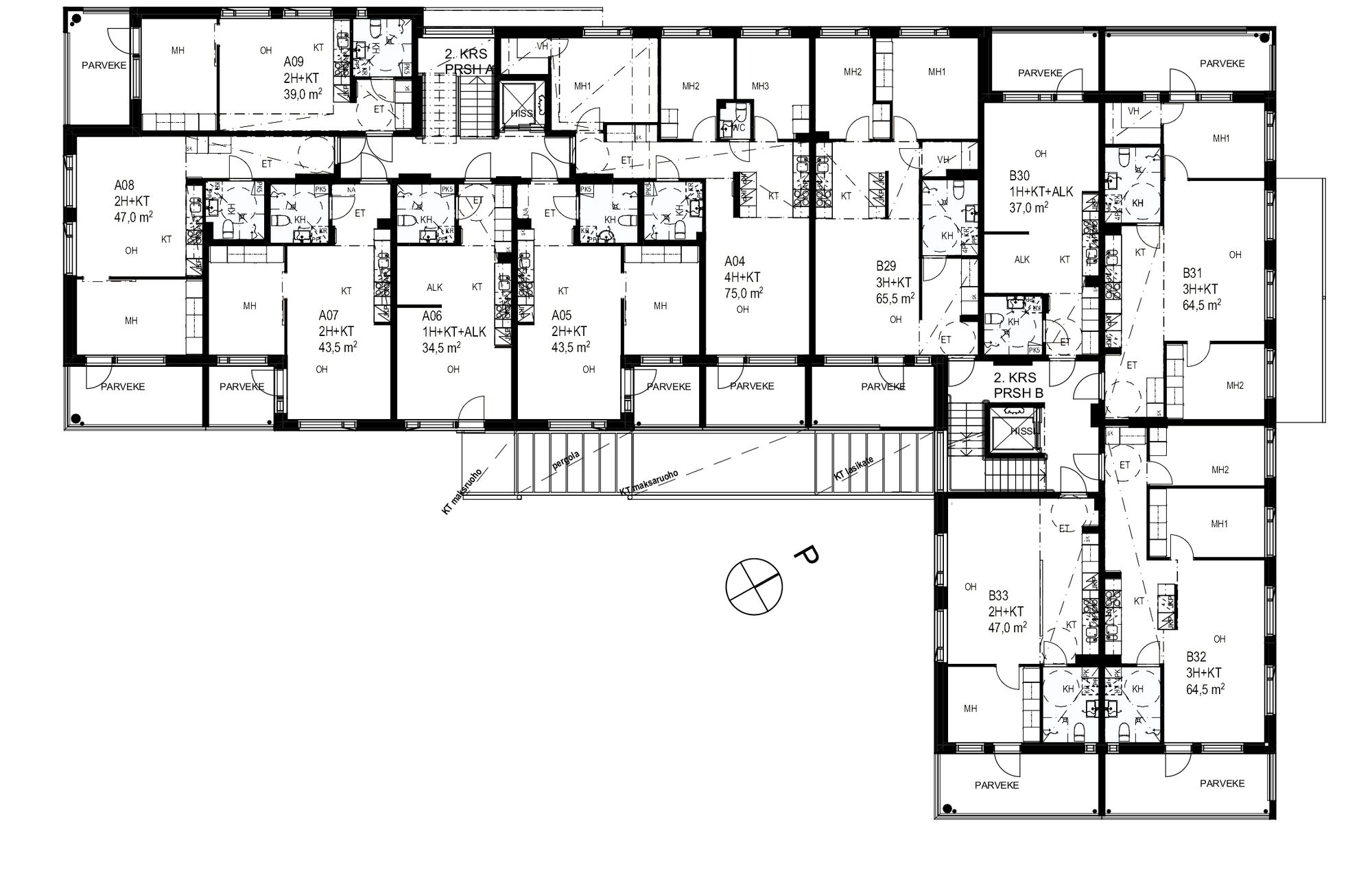
Astreankatu 1 koostuu yhdestä kaksiportaisesta asuinkerrostalosta. A-portaassa on viisi ja B-portaassa seitsemän kerrosta, rakennuksessa ei ole kellaria. Asuntoja palvelevat yhteistilat sijaitsevat rakennuksen ensimmäisessä kerroksessa.
Asuinrakennuksen autopaikat sijoittuvat yhteispysäköintinä tontin kaakkoispuolelle sijoittuvalle autopaikoitustontille pysäköintikannen päälle.

Rakennuksen ensimmäisessä kerroksessa on käytetty graafista betonia. Hangonsillan alueen teemana on rautatie. Suunnittelimme rakennuksen kivijalkaan algoritmisen kuvion junaradoista.










