| Kohde | HEKA Taidemaalarinkatu 2, Helsinki |
| Kategoria | Asuminen |
| Arkkitehti | Petri Viita |
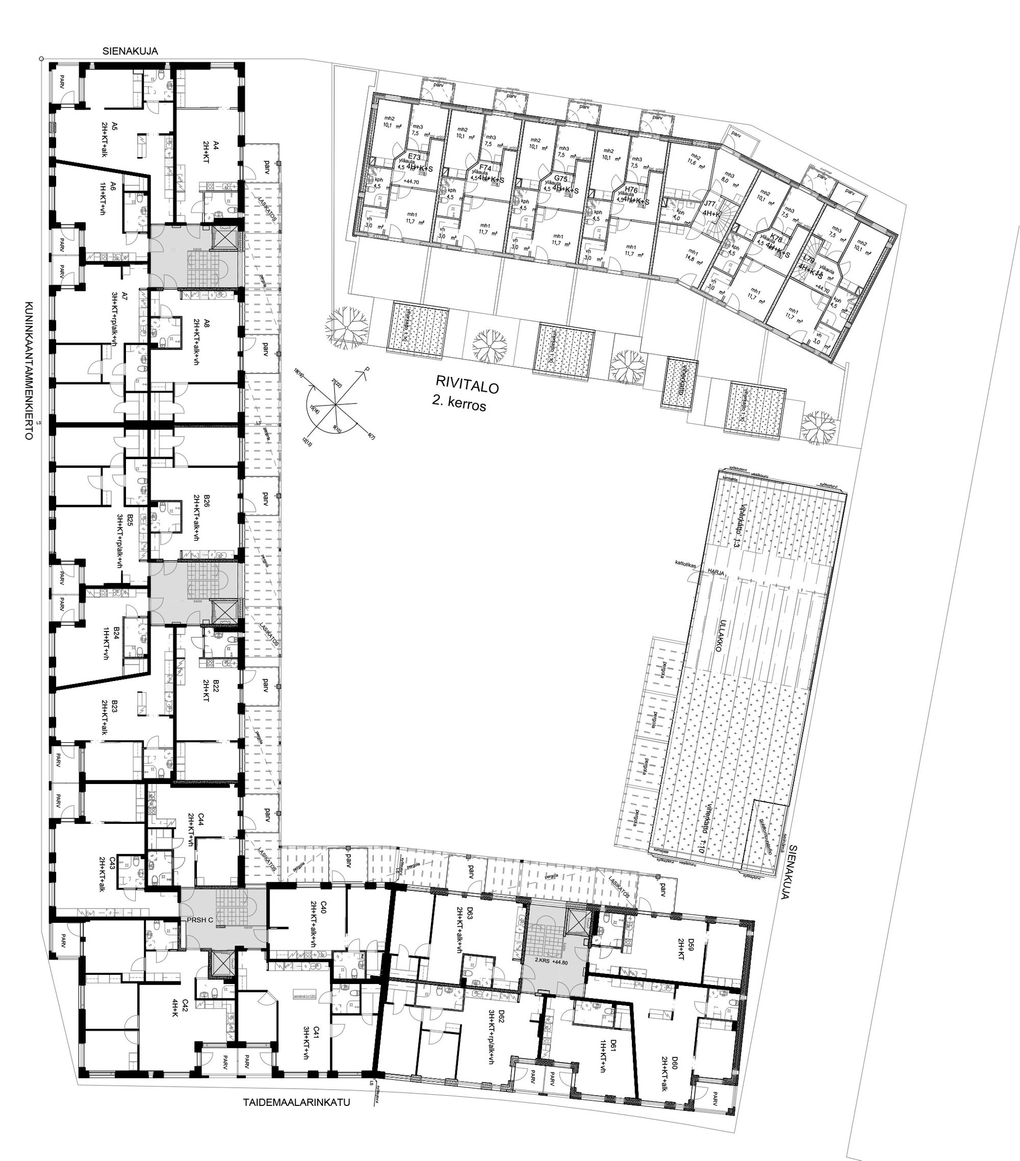
| Laajuus | 78 asuntoa + liiketila, 5200 k-m2, 6523 br-m2 |
| Valmistumisvuosi | 2019 | Asiakas | Helsingin ATT, Lujatalo Oyj |
Kuninkaantammi on kaavaltaan kunnianhimoinen ja alueen tunnistettavuuteen tähtäävä uusi asuinalue Luoteis-Helsingissä. Se sijoittuu paikallishistoriallisesti arvokkaalle Kaarelan alueelle, Vantaanjoen helmaan. Alue toimii maamerkkialueena Hämeenlinnanväylältä Helsinkiin tultaessa.

Korttelissa on kaavanmukaisesti inhimillinen mittakaava sekä vaihteleva ja elämyksellinen, yhteisöllinen asuinympäristö.

Korttelin asuinrakentaminen on monimuotoista ja mittakaavaltaan vaihtelevaa. Kevyenliikenteenraittien varrelle sijoittuvat kaksikerroksiset townhouseasunnot ja korttelin reunoille neljästä viiteen kerroksiset kerrostalot. Korttelipihoilla on yksikerroksinen pihapaviljonki yhteistiloineen. Pysäköinti sijoittuu pääosin viereisen korttelin pihakannen alle sekä osittain viherkattoisiin autokatoksiin.
Puhtaaksi muuratuissa julkisivuissa on käytetty eri värisiä poltettuja tiiliä jakamaan muurimaisia massoja pienempiin kokonaisuuksiin. Parvekkeiden taustaseinät, asuntoterassit jakoseinineen ja pergoloineen sekä rivitalojen ja piharakennusten pihan puoleiset julkisivut ovat puuverhoiltuja.

Kohteessa on panostettu merkittävästi hankkeiden ympäristöystävällisyyteen ja hulevesiin. Korttelipihoilla on vehreät sadevesipuutarhat ja metsäkasvillisuutta. Matalien rakennusten ja katosten katot ovat viherkattoja, katoilla on aurinko-paneeleja.
Matalaenergia rakennukset ovat ensimmäiset Helsingissä sijaitsevat kuntarahoituksen vihreää rahoitusta saaneet asuintalot. Vihreää rahoitusta voidaan myöntää investointihankkeille, joissa syntyy selkeitä ja mitattavia hyötyjä ympäristölle.
Korttelit ovat Ara-rahoitettuja kohtuuhintaisen asuntotuotannon esimerkkejä, joissa on pyritty arkkitehtuuriltaan omaleimaiseen sekä kestävän kehityksen mukaiseen rakentamiseen.

