| Kohde | Otakaaren opiskelija-asuntola, Espoo |
| Kategoria | Asuminen, opiskelija-asunnot | Työryhmä | Juhani Väisänen, Esko Kahri, Juha Kämäräinen, Emma Kämäräinen |
| Laajuus | 114 asuntoa, 6700 br-m2 |
| Valmistumisvuosi | 2004, 2014 | Asiakas | TKY |
Otaniemen kampusalueelle 2003 järjestetty KVR-kilpailu, jossa haettiin kaupunkikuvallisesti vaativalle kapealle kulmatontille Aallon arkkitehtuuriin sopivaa ratkaisua opiskelija-asuntolaksi.
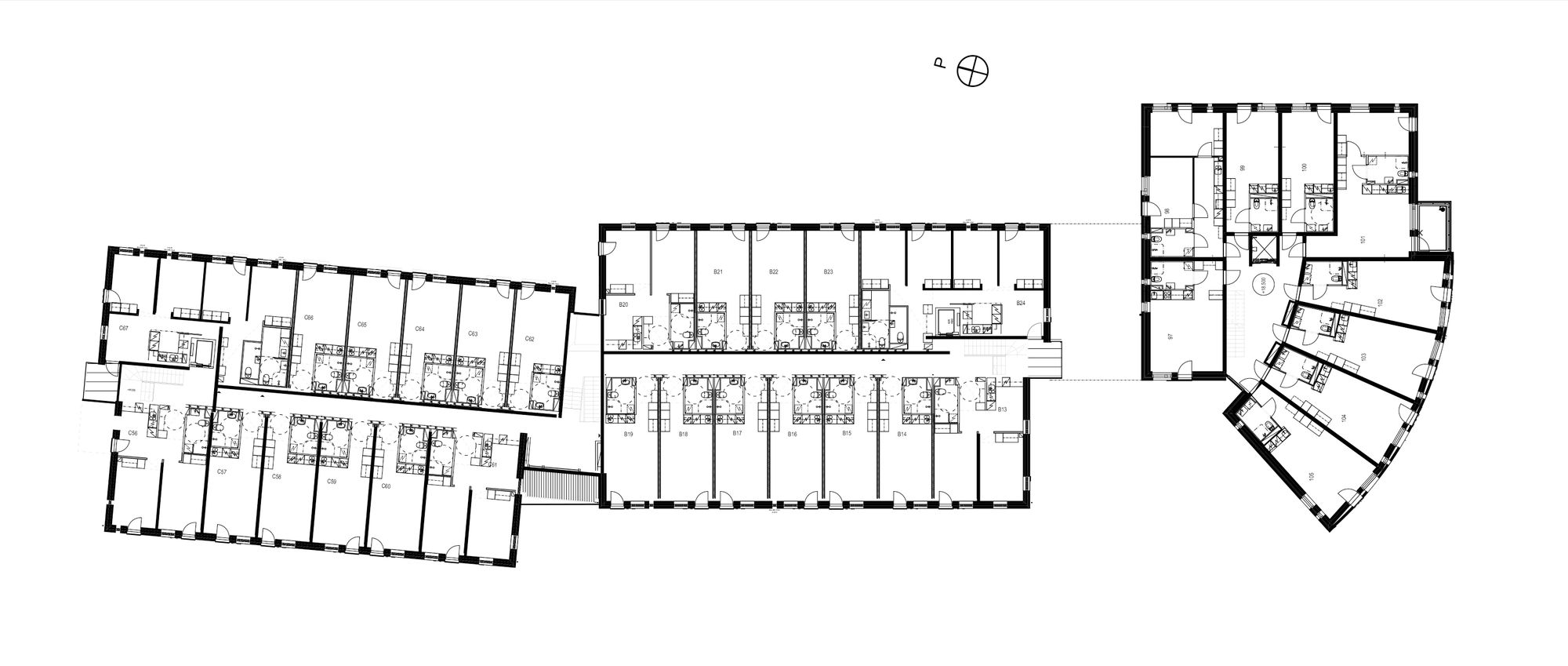
Rakennus muodostuu kolmesta kolmikerroksisesta osasta: kahdesta keskikäytävällisestä asunto-osasta ja alunperin toimisto tiloiksi suunnitellusta viuhkamaisesta osasta. Projekti rakentui kahdessa osassa, ensin Otakaaren suuntaiset kaksi osaa ja lopulta lähes 10 vuotta myöhemmin myös kaareva osa. Kisavaiheessa rakennukseen oli tarkoitus sijoittaa myös toimistotiloja opiskeiljajärjestölle, mutta myös nämä tilat muutettiin myöhemmin asunnoiksi.
Rakennuksessa on yksiöitä, kahden opiskelijan soluhuoneistoja sekä ryhmäasumishuoneistoja ja opiskelijoiden yhteistiloja. Yhteensä 114 asuntoa.
- osa valmistunut 2005
- osa valmistunut 2014





