| Kohde | Sara Hildénin taidemuseokilpailu |
| Kategoria | Taidemuseo, kilpailu |
| Työryhmä | ArkOpen: Juha Kämäräinen, Emma Kämäräinen, Li Chen; Visualisoinnit: Lê Anh Huy |
| Laajuus | 5302 brm² |
| Vuosi | 2020 |
SARAna
Kilpailusuunnitelma avautuu veistoksellisten tiilisiipien välistä länteen kohti kirkkoa. Lasikatteinen keskeistila ja aula hehkuvat lämpimän puun ja tiilen sävyissä ja kutsuvat kävijöitä luokseen. Tiilisiivet kurottuvat dramaattisina ulokkeina aulatilojen ylle.


Kaupunkikuva
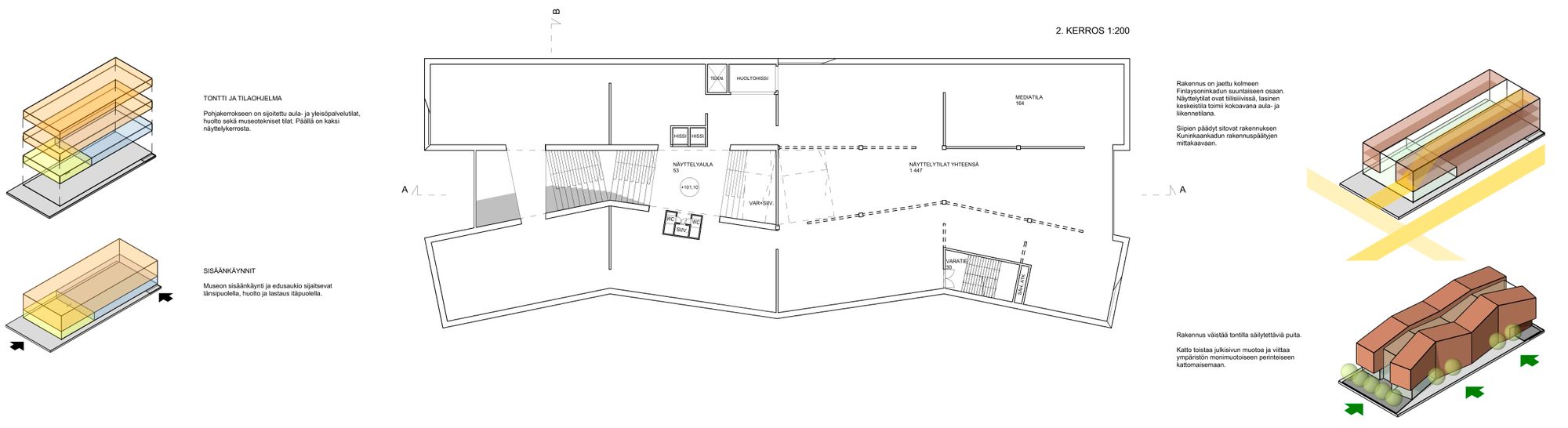
Arkkitehtuuri liittyy Finlaysonin teollisiin tiilirakennuksiin. Rakennuksen volyymi on jaettu pitkittäin kolmeen Finlaysoninkadun suuntaiseen osaan. Kokonaisuus sovittautuu idänpuoleisten rakennusten suurmittakaavaan, sisäänkäyntijulkisivu Kuninkaankadun rakennusten päätyjen mittakaavaan.

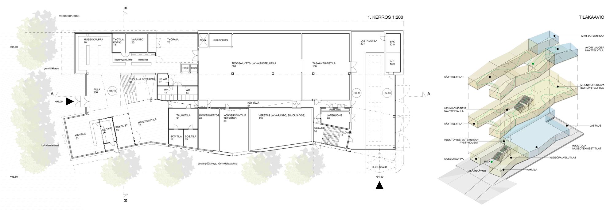
Tilaohjelma
Näyttelytilat sijaitsevat pääosin tiilisiivissä. Umpinaisiin tiilisiipiin on leikattu muutama harkittu aukko kohti näkymiä.
Tiilisiipien välissä on lasikatteinen aula, joka jatkuu portaikkona ylös näyttelytiloihin. Keskeistilan puupintaiset istuskeluportaat toimivat katsomona eri tilaisuuksissa. Keskeistila tekee orientoitumisen helpoksi – rakennus johdattaa kävijän näyttelytiloihin ja näyttelykierto on intuitiivistä.
Rakennuksen edustalle jää harmaalla graniitilla päällystetty sisäänkäyntiaukio, joka jatkuu jaetun katualueen yli. Yleisöpalvelutilat, aula, museokauppa ja kahvila avautuvat aukiolle. Puiston puolelle voidaan sijoittaa veistoksia aukion jatkeeksi. Aukio toimii myös kahvilan terassina.
Monitoimitila ja työpaja sijoittuvat aulan jatkeena kahvilan ja museokaupan taakse. Henkilöhissit, naulakot, lokerikot ja wc-tilat sijoittuvat työpajan viereen. Ylemmissä kerroksissa hissit avautuvat keskeistilan näyttelyaulaan.

Näyttelytilat sijoittuvat tiilisiipiin sekä ylimmässä kerroksessa lasikatteisen keskeistilan alle. Tiilisiivet toimivat loft-periaatteella, tiiliseinien väliin jää avointa tilaa, joka on jaettu poikittaisin clt-puuseinin. Tilajakoa voidaan muuntaa puuseiniä purkamalla ja rakentamalla.
Alemmassa näyttelykerroksessa on muuntojoustava näyttelytila, joka voidaan tarvittaessa yhdistää yhdeksi isoksi näyttelytilaksi.
Huoltoyhteys ja lastaustila sijaitsevat rakennuksen itäpäädyssä. Pohjakerroksessa, aulan ja lastaustilan välissä ovat museotekniset tilat, henkilöstötilat ja huolto. Huoltohissi ja talotekniikan pystynousut on sijoitettu keskeisesti rakennuksen pohjoissiipeen. Ilmanvaihtokonehuoneet sijaitsevat ylimmässä kerroksessa, lämmönjako- ja sähkötilat pääosin pohjakerroksessa.
Tiilisiivet ovat pääosin umpinaisia, ikkuna-aukot ovat pimennettävissä, valaistus hallittua ja muunneltavaa. Myös luonnonvaloiset aulatilat ja sillat toimivat näyttelytiloina.



Rakenne ja materiaalit
Kantava runko on paikalla valettua betonia. Ulkoseinät ovat paikallamuurattua punatiiltä ja lasia. Yläpohja on puurakenteinen. Kerroskorkeus on viisi metriä, ylimmässä kerroksessa kattomuotojen mukaan osittain korkeampi. Välipohjien alla sekä yläpohjassa on tilaa talotekniikan vaakavedoille.
Ohuita clt-levyseiniä käytetään siirreltävinä tilojen ripustus- ja jakoseininä näyttelyiden tarpeiden mukaan. Levyt voidaan kiinnittää ja irrottaa ruuvaamalla alakattojen ja lattioiden puupalkkeihin.

Alakatot ovat puurimakattoja. Näyttelytilojen clt-puuseinät ovat valkokuultokäsiteltyä kuusta, tiiliseinät slammataan valkoisiksi. Monitoimitilan ja työpajan taustaseinät ovat mustaksi kuultokäsiteltyä puurimaa. Aukion vaalean harmaa graniittikiveys jatkuu aulatiloihin. Toisen ja kolmannen kerroksen lattiat ovat leveää puulautaa. Kalusteet ovat lämpimän sävyistä puuta.


